Golhen Associés - Collège Simone Veil - Crevin - P2 - Chalmeau
Équipement
Crevin (35) - 2014

Collège Simone Veil

Nomination
Sélection Prix Architecture Bretagne 2016
Programme
Collège 600 comprenant locaux d’art plastique, éducation musicale et physique, CDI, restauration 600 couverts/j ...
Maîtrise d'ouvrage
Conseil Départemental 35
Surface
SP 4 801 m²
Mission
Base Loi MOP + Mission mobilier + Etudes parasismiques et modélisation + Mission HQE gestion des documents + SSI + OPC
Certification et objectif
BBC Cibles : 1, 2, 4, 5, 7, 8, 9, 10, 12
Équipe de maîtrise d’œuvre
OTEIS-ISATEG, CONCEPTIC’ART, ACOUSTIBEL, Ouest Coordination
Collège Simone Veil

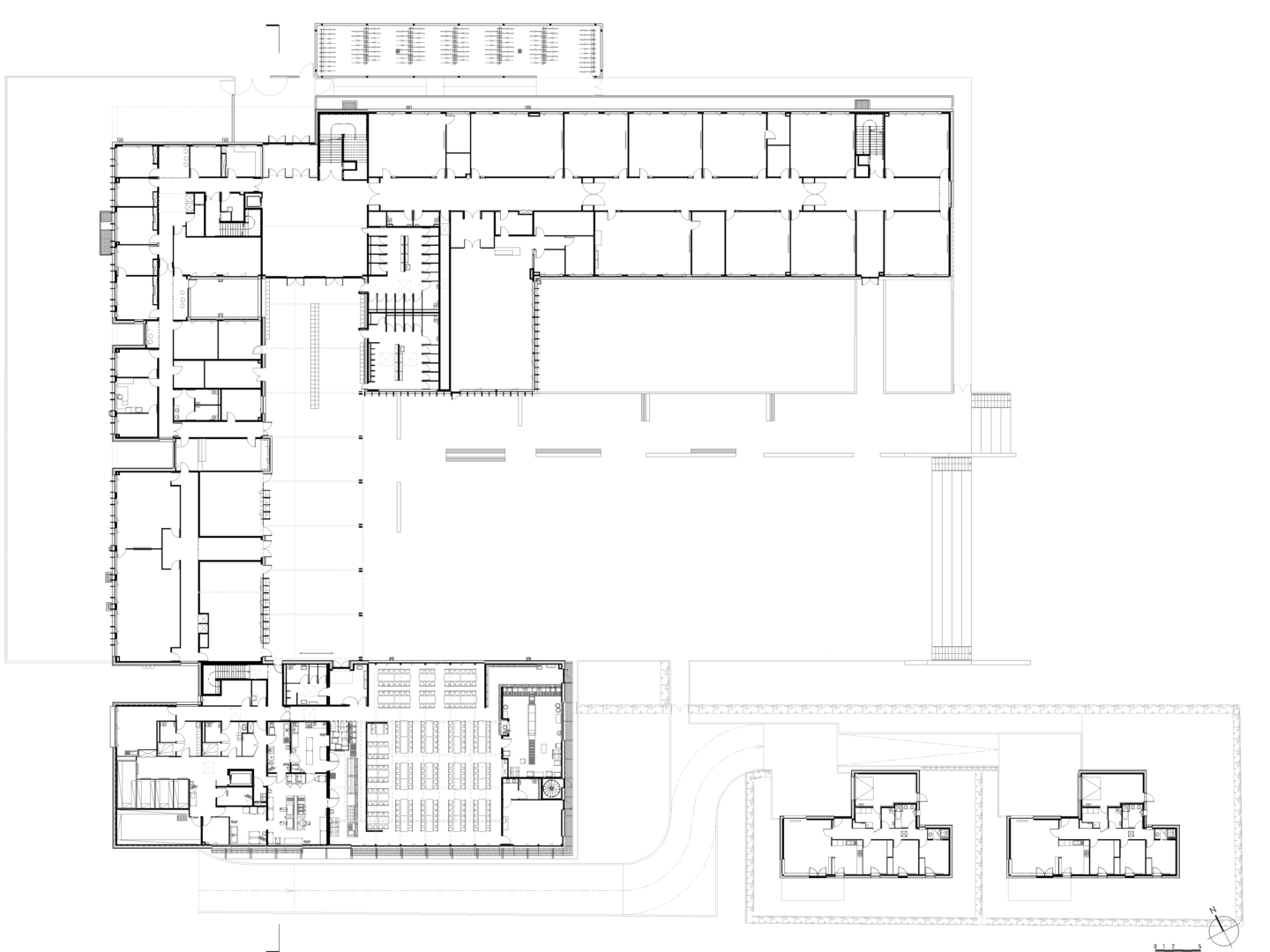
Le collège se situe à l’entrée de la commune, entre un secteur industriel et un tissu pavillonnaire, à 400 m à l’Ouest de l’axe Rennes/Nantes.

La pente du terrain, son orientation, les vents dominants et la proximité de la route ont façonné la forme du projet et son implantation.

Le collège est simple, lisible dans son fonctionnement, offrant une qualité de vie pour les élèves et le personnel.

Calé dans la pente, il s’écrit en « U », ouvert à l’Est. Il tourne le dos aux vents dominants, protégeant le préau et la cour.

L’aile Nord regroupe sur 2 niveaux les salles de cours distribuées par une large rue. L’entrée de l’établissement est marquée par un creux dans la façade formant un auvent. Cette aile Ouest regroupe les locaux des enseignants au niveau 1 et l’administration à rez-de-chaussée accolée au hall d’entrée.

En entrant droit devant, se prolonge le préau, connecté au bâtiment Ouest. Ce dernier abrite la vie scolaire. Puis en retour au Sud à l’extrémité du préau, se place la restauration. La salle de restaurant profite d’une très large vue paysagée qui tourne le dos à l’établissement pour donner à ce moment privilégié du repas un caractère qualitatif.

Réglé sur une altimétrie moyenne du terrain, le gabarit du collège n’excède pas celui des pavillons existants. Les deux logements de fonction s’égrainent en satellites au Sud‑Ouest du terrain.

Isolée par l’extérieur, l’architecture s’exprime par le jeu des vêtures béton et bois, les lignes de cadrage et les ondulations partielles des couvertures zinc.

Le collège renforce son identité par l’incrustation de photos de personnages célèbres du département. Une technique Finlandaise de désactivation du béton assure la lisibilité pérenne des portraits.

Le zinc et la végétalisation des terrasses revêtent le collège. Ils dissimulent tous les équipements techniques puisque la pente donne à lire cette cinquième façade.

La touche de couleur fuchsia marque l’entrée, une note lumineuse et chaleureuse comme un mot de bienvenue.

Préau et cour de récréation
CDI
Salle de restaurant
Technique finlandaise de béton gravé par désactivation